Locale commerciale in Via Salento

Taranto, Italia / Montegranaro

Telefono 099 730 22 93
Cellulare 331 347 32 06

Per maggiori informazioni, compila il modulo:

Dettagli immobile

Prezzo 1.200,00 €
Superficie 247㎡
Classe energetica CLE: G IPE 61,89 KWh/mq/anno
Bagni 3

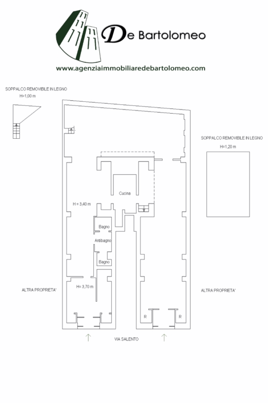
In Via Salento, tra le rinomate Viale Liguria e Corso Piemonte, proponiamo in affitto o in vendita un ampio e rifinito locale commerciale di circa 247 mq.
Ubicato al piano terra con due serrande elettriche alla strada, il locale dispone di doppio ingresso, due bagni con antibagno (di cui uno riservato originariamente donna/disabili), un bagno riservato, zona cucina, quattro rispostigli, soppalco (eventualmente rimovibile).
Situato in una zona altamente commerciale della città di Taranto, l’immobile è una soluzione ideale per molteplici attività commerciali anche ad alta affluenza di clientela, oppure anche per l’apertura di attività professionali.
In precedenza è stato utilizzato anche come rinomata attività di pub/pizzeria e deposito/magazzino merci.
Il cespite è immediatamente disponibile e dispone di attestazione di agibilità.

  • Prezzo di vendita: € 220.000,00
  •  Canone di affitto: € 1.200,00 mensili

Altri dettagli

Ripostiglio
Saracinesche elettriche

Virtual Tour

Goditi l’emozione di una visita a 360 gradi grazie al nostro real virtual tour

Video

Mappa

Via Salento

Taranto, Italia / Montegranaro

Telefono 099 730 22 93
Cellulare 331 347 32 06

Per maggiori informazioni, compila il modulo:

Immobili in zona

Immobili in primo piano